PRZEKRÓJ

Agawa B
(lustro)

Cena projektu: 2590.00 zł

MINIMALNE WYMIARY DZIAŁKI

Minimalne wymiary działki

Wygodny dom z użytkowym poddaszem, bez piwnic w nowoczesnej aranżacji. Kuchnia otwarta na przestronny salon-jadalnię z wejściem na zadaszony taras. Gabinet na parterze, 3 sypialnie na poddaszu, pokój nad garażem oraz pomieszczenie gospodarcze i garderoby zapewnią komfort użytkowania.

Dostępne wersje : B2 z garażem dwustanowiskowym i odbicia lustrzane

POW. ZABUDOWY POW. UŻYTKOWA POW. NETTO WYSOKOŚĆ BUDYNKU KUBATURA NACHYLENIE DACHU
124.3 m2 139.7 m2 192.1 m2 8.5 m 785.0 m3 40.0 o

DANE TECHNICZNE:

powierzchnia dachu: 229 m2
kubatura drewna na więźbę: 9,48 m3
pow. ścian fundamentowych: gr.25cm61,45 m2
pow. ścian zewnętrznych:gr.25cm177,94 m2
pow. ścian wewnętrznych :gr.25cm15,06 m2
gr.12cm 110,90 m2
gr. 8cm 5,24 m2

kocioł: na paliwo stałe lub gaz


KONSTRUKCJA i MATERIAŁY:
ściany zewnętrzne : pustaki ceramiczne 25cm + ocieplenie 15cm
ściany wewnętrzne: pustaki ceramiczne
strop : gęstożebrowy Teriva
dach : konstrukcja drewniana kryta dachówką
schody wewnętrzne : żelbetowe


ROZWIĄZANIA MATERIAŁOWE MOGA ZOSTAĆ ZMIENIONE W RAMACH ADAPTACJI PROJEKTU

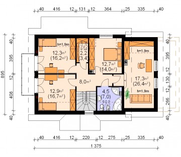
RZUT PARTERU

Rzut

RZUT PIĘTRA

Rzut